Objektart
Adresse
Objektdaten
Informationen
Ausstattung
Details
Diese Doppelhaushälfte aus dem Baujahr 1986 bietet auf ca. 105 m² Wohnfläche eine wunderbare Grundlage, um individuelle Wohnideen zu verwirklichen. Die attraktive Feldrandlage sorgt für eine besonders ruhige Wohnatmosphäre und eröffnet einen freien Blick ins Grüne.
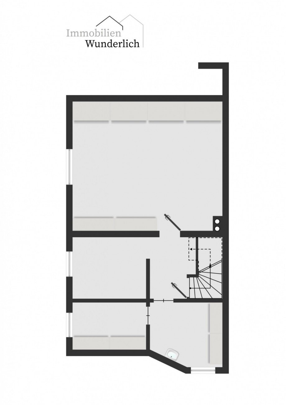
Im Erdgeschoss erwartet Sie ein großzügig geschnittener Wohn- und Essbereich mit direktem Zugang zur Terrasse - ideal für entspannte Stunden im Freien. Der Boden ist mit schönem Stäbchenparkett ausgestattet und verleiht dem Raum eine warme, wohnliche Atmosphäre. Im Wohnzimmer sorgt ein Kamin für zusätzliche Gemütlichkeit. Die Küche verfügt über ein charmantes Bullaugenfenster mit Blick ins Grüne sowie ein weiteres Fenster zum Garten. Ein Gäste-WC rundet das Raumangebot auf dieser Ebene harmonisch ab.
Im Obergeschoss stehen Ihnen ein Vollbad sowie zwei gut geschnittene Zimmer zur Verfügung. Das ausgebaute Dachgeschoss ist der Nutzfläche zugeordnet und bietet ein weiteres Zimmer, das flexibel genutzt werden kann.
Ein Vollkeller schafft zusätzlichen Stauraum und vielfältige Nutzungsmöglichkeiten. Beheizt wird die Immobilie über eine Gasheizung. Zwei Stellplätze gehören ebenfalls zum Angebot.
Das Haus präsentiert sich in einem soliden Zustand und bietet vor allem Potenzial für individuelle Modernisierungen. Mit wenigen gezielten Maßnahmen lässt sich hier ein modernes und individuelles Zuhause schaffen.
Vereinbaren Sie gerne einen Besichtigungstermin und überzeugen Sie sich selbst von dieser Immobilie!
Einbauküche
Kamin
Keller
ausgebauter Dachraum
Vollbad
Garage
Kummerfeld im Kreis Pinneberg in Schleswig-Holstein liegt im direkten Umland der Metropolregion Hamburg und verbindet eine ruhige, überwiegend von Einfamilienhäusern geprägte Wohnlage mit einer sehr guten Verkehrsanbindung in die Hansestadt.
Der Ort ist besonders für Familien und Pendler attraktiv, da er ein naturnahes Wohnumfeld mit kurzen Wegen in die städtische Infrastruktur kombiniert. Die Anbindung nach Hamburg ist durch die nahegelegene Autobahn A23 sowie die Bahnhöfe in den umliegenden Städten wie Pinneberg sehr gut gegeben; von dort besteht Anschluss an das S-Bahn-Netz der S-Bahn Hamburg, sodass die Hamburger Innenstadt in etwa 30 bis 40 Minuten erreichbar ist.
Für den Familienalltag ist die Versorgung ebenfalls komfortabel: Im nahen Umfeld befinden sich Kindertagesstätten sowie Grundschulen, während weiterführende Schulen insbesondere im benachbarten Pinneberg gut erreichbar sind. Auch Einkaufsmöglichkeiten des täglichen Bedarfs wie Supermärkte, Bäckereien und Drogerien sind in kurzer Fahrdistanz vorhanden, größere Einkaufszentren und ein erweitertes Dienstleistungsangebot finden sich ebenfalls in Pinneberg.
Ergänzt wird die Lage durch ein ruhiges, grünes Umfeld mit Feldern und Naherholungsflächen, das eine hohe Lebensqualität und gute Freizeitmöglichkeiten bietet. Insgesamt eignet sich Kummerfeld damit ideal für Familien und Berufspendler, die eine ruhige Wohnlage im Grünen suchen, ohne auf die Nähe und gute Erreichbarkeit Hamburgs verzichten zu wollen.
HAFTUNG
Ich weise darauf hin, dass die von mir weitergegebenen Objektinformationen, Unterlagen, Pläne und sonstigen Angaben vom Verkäufer bzw. von Dritten stammen. Eine Haftung für die Richtigkeit oder Vollständigkeit dieser Angaben übernehme ich daher nicht. Es obliegt dem Kunden, die enthaltenen Informationen eigenständig auf ihre Richtigkeit zu überprüfen. Alle Immobilienangebote sind freibleibend und vorbehaltlich Irrtümer, Zwischenverkauf, Zwischenvermietung oder sonstiger Zwischenverwertung.
WEITERGABEVERBOT
Sämtliche Informationen, insbesondere Objektnachweise und Objektangaben, sind ausschließlich für den Kunden bestimmt. Eine Weitergabe an Dritte ist nur mit vorheriger ausdrücklicher schriftlicher Zustimmung des Maklers zulässig. Verstößt der Kunde gegen diese Verpflichtung und kommt infolge der unbefugten Weitergabe durch den Dritten oder weitere Personen ein Hauptvertrag zustande, ist der Kunde verpflichtet, dem Makler die vereinbarte Provision zu zahlen.
DOPPELMAKLERTÄTIGKEIT
Ich weise darauf hin, dass Immobilien Wunderlich im Rahmen der Maklertätigkeit auch als Doppelmakler für beide Vertragsparteien tätig sein kann.
GELDWÄSCHE
Immobilien Wunderlich ist gemäß § 2 Abs. 1 Nr. 14 sowie § 10 Abs. 3 GwG verpflichtet, bei Begründung einer Geschäftsbeziehung die Identität des Vertragspartners festzustellen und zu überprüfen. Hierzu sind nach § 11 GwG die erforderlichen Angaben und Nachweise zu erheben und zu dokumentieren. Bei natürlichen Personen erfolgt dies in der Regel durch Einsicht in den Personalausweis oder Reisepass; hierzu kann eine Kopie gefertigt werden. Bei juristischen Personen oder Personengesellschaften ist ein aktueller Registerauszug erforderlich, aus dem sich auch die wirtschaftlich Berechtigten ergeben. Die erhobenen Daten sind gemäß § 8 Abs. 4 GwG fünf Jahre aufzubewahren und anschließend zu löschen
Energieausweis (Bedarfsausweis)
147,64 kWh / (m²*a) Endenergiebedarf
147,64 kWh / (m²*a) Endenergiebedarf
147,64 kWh / (m²*a) Endenergiebedarf
Weitere Informationen
| Wesentlicher Energieträger | GAS |
| Energieausweis gültig bis | 2036-04-09 |
| Energieausweis Jahrgang | ab dem 1.5.2014 |
| Energieausweis Werteklasse | E |
| Energieausweis Baujahr | 1986 |
| Energieausweis Gebäudeart | Wohngebäude |
| Befeuerung | Gas |
Ich bin damit einverstanden, dass mir Karten von Google angezeigt werden. Es gelten die Datenschutzbedingungen von Google (https://policies.google.com/privacy).
Ich bin einverstanden